124 W Mountain View Street

Long Beach, CA 90805

$ 599,800

Price

3

Beds

3

Baths

1,497 Sq. Ft.

$401 / Sq. Ft.

587 Days On Market

Favorite

Share

Have You Been Pre-Qualified? Start Now

Listing provided by agent Costanza Genoese Zerbi BRE# 01941438 at Redfin Corporation.

Last Updated: 517 days ago

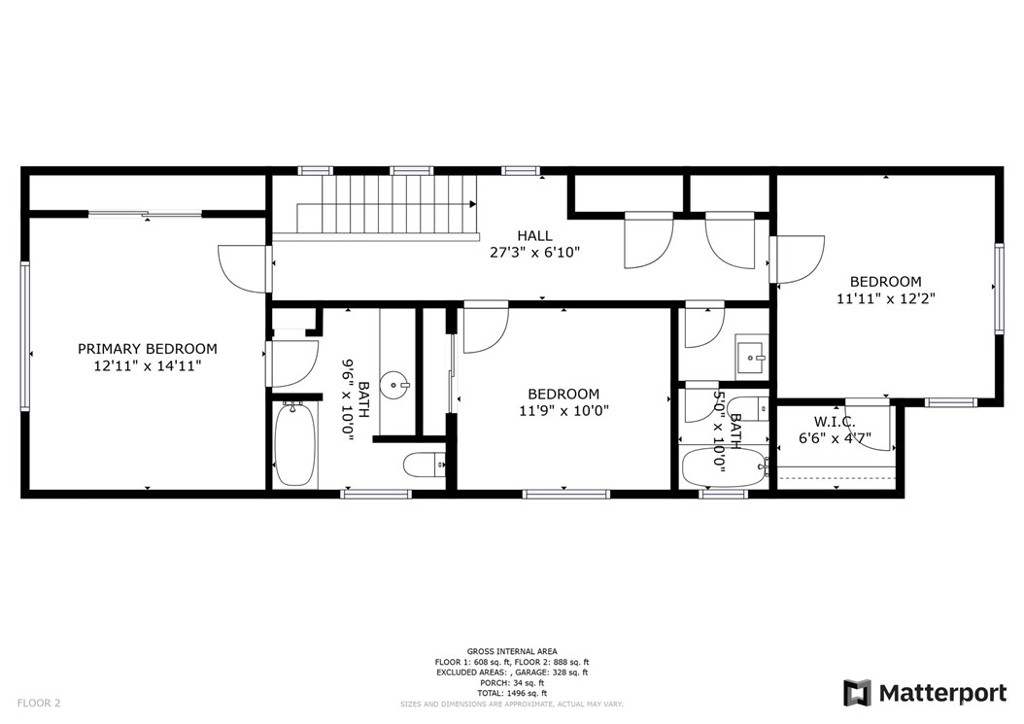
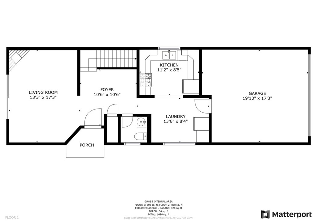
Great opportunity to use your creative flair to fix up this spacious home that is tucked away in a quiet and secure North Long Beach culdesac. This home is on two stories with large bedrooms and cathedral ceilings. The living room has a charming fireplace and opens to a private patio. All bedrooms are on the top floor and the Primary suite features a large walk in closet. Great bones ready for updating. Do not miss this opportunity and NO HOA!

Show More
Property Type Condominium
Lot Size 10,310 sq. ft.
Year Built 2001
MLS # PW24005015
Listing Type Closed
Heating Central, Fireplace(s), Natural Gas, Zoned
Cooling Central Air, Electric, Gas, Zoned
Laundry Gas Dryer Hookup, In Garage, Inside, Washer Included
Parking Garage, Garage Faces Front, Garage - Single Door, Garage Door Opener

Payment Calculator

40% Complete (success)
80% Complete (danger)
20% Complete
80% Complete (danger)
60% Complete (warning)
Principal and Interest
Property Taxes
Homeowners' Insurance
HOA Dues
Mortgage Insurance
Image Calculator Icon Customize Calculations | Compare Mortgage Rates

Property Details for: 124 W Mountain View Street

Interior Features

Bathroom Information
  • 3 full baths
Laundry Information
  • Gas Dryer Hookup
  • In Garage
  • Inside
  • Washer Included
Fireplace Information
  • Living Room
  • Gas
  • Wood Burning
Interior Features
  • Built-in Features
  • Cathedral Ceiling(s)
  • Ceiling Fan(s)
  • Copper Plumbing Partial
  • Pantry
  • Storage
  • Tile Counters
  • Unfurnished
Heating & Cooling
  • Central Air
  • Electric
  • Gas
  • Zoned
  • Central
  • Fireplace(s)
  • Natural Gas
  • Zoned

Parking / Garage, Multi-Unit Information, Location Details

Interior Information
  • Built-in Features
  • Cathedral Ceiling(s)
  • Ceiling Fan(s)
  • Copper Plumbing Partial
  • Pantry
  • Storage
  • Tile Counters
  • Unfurnished
Parking Information
  • Garage
  • Garage Faces Front
  • Garage - Single Door
  • Garage Door Opener

Exterior Features

Property / Lot Details

Property Features
  • Neighborhood
Lot Information
  • Lot Size (Sq. Ft) 10,310
Property Information
  • Tax Parcel Number: 7132015048

Nearby Businesses

  • Grocery Stores
  • Drug Stores
  • Coffee Shops
  • Restaurants
  • Health & Medical
  • Fitness & Activity
  • Arts & Entertainment
  • Nightlife & Bars
    Browse all businesses in Long Beach, CA, 90805

    Tour This Condo

    MONDAY

    5

    JAN

    TUESDAY

    6

    JAN

    WEDNESDAY

    7

    JAN

    THURSDAY

    8

    JAN

    FRIDAY

    9

    JAN

    SATURDAY

    10

    JAN

    SUNDAY

    11

    JAN

    Schedule A Tour
    Ryan Case, Licensed Realtor & Team Lead

    Ryan Case

    Licensed Realtor & Team Lead

    213-449-4909 Contact Ryan Case
    Listing provided by agent Costanza Genoese Zerbi BRE# 01941438 at Redfin Corporation.

    Last Updated: 517 days ago