382 Coronado Avenue #306A

Long Beach, CA 90814

$ 540,500

Price

2

Beds

2

Baths

1,030 Sq. Ft.

$525 / Sq. Ft.

Zillow Price Estimate - $547,300

1474 Days On Market

Favorite

Share

Coronado Heights Building

Have You Been Pre-Qualified? Start Now

Listing provided by agent Beatrix Whipple BRE# 01355505 at Keller Williams Pacific Estate.

Last Updated: 1465 days ago

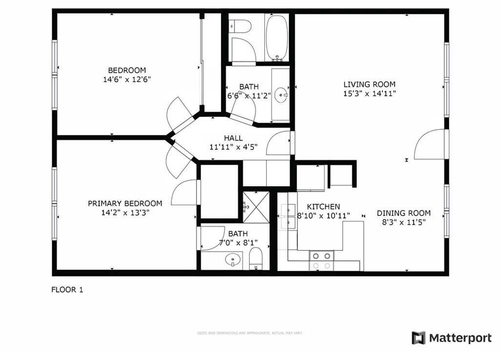
Welcome home to this super clean and sharp top floor condo in the heart of Bluff Heights! Spacious two bedroom two bath courtyard style condo in a small, well-maintained mid-century building with secured access, secured assigned parking, storage, elevator and swimming pool. Laminate wood flooring, scraped ceilings, crown moulding, and an open floor plan with lots of square footage and big windows with views of the mountains makes this home as comfortable as it is conveniently located to shopping, dining, the Broadway corridor and Belmont Shores. Open kitchen with shaker style cabinets, stainless steel appliances, a breakfast bar and separate dining area. Both bedrooms are very large, the primary bedroom features an en-suite bathroom updated with a quartz-topped vanity and a spacious walk-in closet. The second bedroom is equally as large as the primary bedroom with a wall-to-wall mirrored closet. The hallway guest bathroom has a separate, updated vanity area with a quartz topped vanity and tons of storage, updated shower and tub with marble-style tile and neutral toned glass accent tile. The living room is spacious, open and has wonderful natural light, all of the windows have custom plantation shutters. Pet friendly, quiet building in a charming neighborhood full of Craftsman homes and in close proximity to freeway access and shopping and dining.

Show More
Property Type Condominium
Lot Size 13,503 sq. ft.
Year Built 1969
MLS # PW21241513
Listing Type Closed
Heating Radiant
Pool Community
Laundry Community
Parking Assigned, Garage
Gated Community No

Payment Calculator

40% Complete (success)
80% Complete (danger)
20% Complete
80% Complete (danger)
60% Complete (warning)
Principal and Interest
Property Taxes
Homeowners' Insurance
HOA Dues
Mortgage Insurance
Image Calculator Icon Customize Calculations | Compare Mortgage Rates

Property Details for: 382 Coronado Avenue #306A

Interior Features

Bathroom Information
  • 2 full baths
Laundry Information
  • Community
Interior Features
  • Ceiling Fan(s)
  • Crown Molding
  • Open Floorplan
  • Stone Counters
  • Tile Counters
Heating & Cooling
  • Radiant

Parking / Garage, Multi-Unit Information, Location Details

Interior Information
  • Ceiling Fan(s)
  • Crown Molding
  • Open Floorplan
  • Stone Counters
  • Tile Counters
Parking Information
  • Assigned
  • Garage
Community Features
  • Units in Complex (Total) 21

Exterior Features

Pool & Spa Information
  • Community
Building Information
  • Total Floors: 4

Property / Lot Details

Property Features
  • Mountain(s)
  • Neighborhood
Lot Information
  • Lot Size (Sq. Ft) 13,503
Property Information
  • Attached
  • Tax Parcel Number: 7257014053

Recently Sold Homes Near 382 Coronado Avenue #306A

Nearby Businesses

  • Grocery Stores
  • Drug Stores
  • Coffee Shops
  • Restaurants
  • Health & Medical
  • Fitness & Activity
  • Arts & Entertainment
  • Nightlife & Bars
    Browse all businesses in Long Beach, CA, 90814

    Tour This Condo

    FRIDAY

    19

    DEC

    SATURDAY

    20

    DEC

    SUNDAY

    21

    DEC

    MONDAY

    22

    DEC

    TUESDAY

    23

    DEC

    WEDNESDAY

    24

    DEC

    THURSDAY

    25

    DEC

    Schedule A Tour
    Ryan Case, Licensed Realtor & Team Lead

    Ryan Case

    Licensed Realtor & Team Lead

    213-449-4909 Contact Ryan Case
    Listing provided by agent Beatrix Whipple BRE# 01355505 at Keller Williams Pacific Estate.

    Last Updated: 1465 days ago